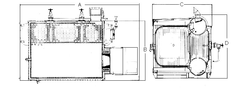
| 外型尺寸 | A | mm | 4480 | 4780 | 5080 | 5380 | 5680 | 4930 | 5530 | 5980 | 6565 | 7930 |
| B | mm | 2750 | 3130 | |||||||||
| C | mm | 2820 | 3200 | |||||||||
| D | mm | 2997 | 3738 | |||||||||
| 型式 | 單位 | SWH-400 | SWH-600 | SWH-800 | SWH-1000 | SWH-1200 | SWH-1500 | SWH-1800 | SWH-2000 | SWH-2500 | SWH-3000 |
|---|---|---|---|---|---|---|---|---|---|---|---|
| 蒸發量 | t / h | 4 | 6 | 8 | 10 | 12 | 14 | 17 | 20 | 25 | 30 |
| 最高使用壓力 | kg/cm2 | 10~30 | |||||||||
| 常用壓力 | kg/cm2 | 30以下 | |||||||||
| 蒸氣溫度 | ºC | 飽和 | |||||||||
| 給水溫度 | ºC | 20 | |||||||||
| 空氣溫度 | ºC | 20 | |||||||||
| 通風方式 | - | 強制通風 | |||||||||
| 燃燒方式 | - | 加壓燃燒 | |||||||||
| 使用燃料 | - | C重油 | |||||||||
| 控制方式 | - | 電氣式全自動控制 | |||||||||
